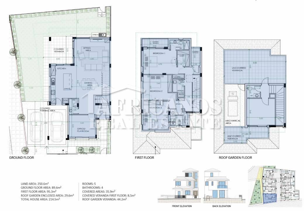
Bedrooms: 5
Bathrooms: 1
Toilets: 5
Showers: 3
Covered Area: 196.10 - 215.20m2
Plot Size: 240 - 303m2
Condition: Off-Plan
Parking: Covered