Property Information
MLS: 18582
City: Larnaca
District: Aradippou
Status: For Sale
Type: Apartment
Subtype: Standard
Levels: 2nd Floor
Title of ownership :
Price: €306,000

Bedrooms: 2
Bathrooms:
Toilets: 3
Showers: 2
Covered Area: 80m2
Condition: Off-Plan
Parking: Covered

Preview
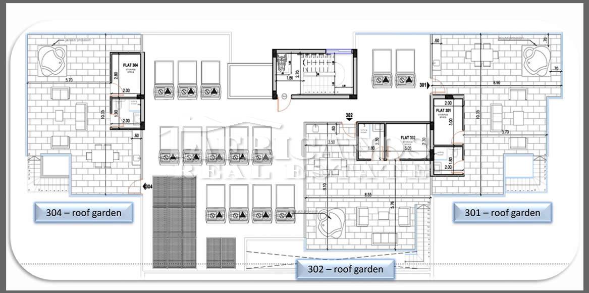
Top floor 2 bedroom penthouse apartment, with huge roof garden, for sale in Aradippou area, Larnaca. The village of Aradippou provides all amenities including Greek and English schools, supermarkets, medical facilities, banking facilities, sporting facilities, large variety of shops etc. A short drive to the Metropolis Mall and Larnaca Town. Easy access to Larnaca, Nicosia, Ayia Napa motorway...
Property Description
#Apartment for sale in Larnaca, Aradippou area. The property consists of 2 bedrooms, open plan kitchen, living room, 1 shower, second shower en-suite, 3wc, 22.6sq.m. covered verandas, 70.3sq.m. roof garden, covered parking, storage. Provision for electric car charger. Provision for A/C. Class A Energy Sufficiency.
Property Features
Extra: Roof Garden, Storage room, Water pressurized system, Elevator, Solar Panels