Property Information
MLS: 18161
City: Larnaca
District: Livadia - Larnaca Bay
Status: Reserved
Type: Apartment
Subtype: Penthouse
Levels: 2nd Floor
Title of ownership :
Price: €175,000

Bedrooms: 1
Bathrooms:
Toilets: 1
Showers: 1
Covered Area: 50.5m2
Condition: Under Construction
Parking: Covered

Preview
Top floor 1 bedroom penthouse apartment, with roof garden, for sale in the upcoming Livadia area. The village of Livadia provides all amenities including schools, university, supermarkets, shops, medical facilities etc. A short drive to the beach, the harbour and Larnaca Town. Easy access to Larnaca, Ayia Napa, Nicosia motorway...
Property Description
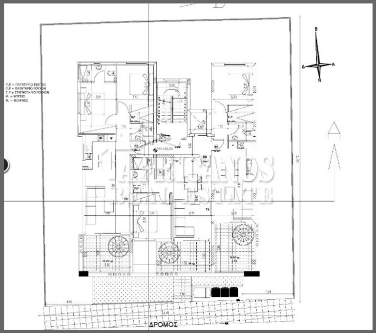
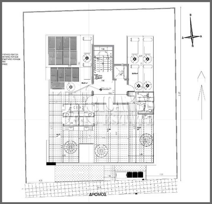
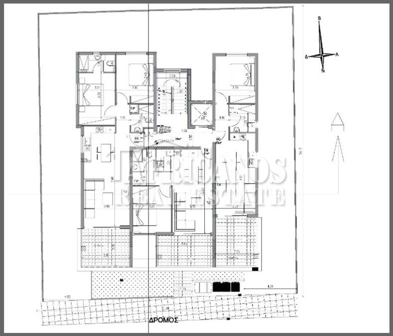
#Apartment for sale in Larnaca, Livadia area. The property consists of 1 bedroom, open plan kitchen, living room, 1 shower, 1wc, 14.20sq.m. covered verandas, 43.7sq.m. roof garden, covered parking, storage. Construction to begin in this month.
Property Features
Extra: Storage room, Solar Panels, Water pressurized system, Elevator