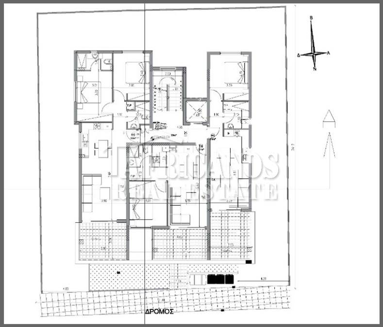
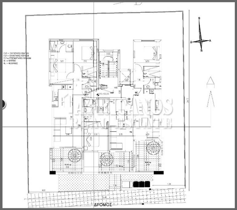
Bedrooms: 1
Bathrooms:
Toilets: 1
Showers: 1
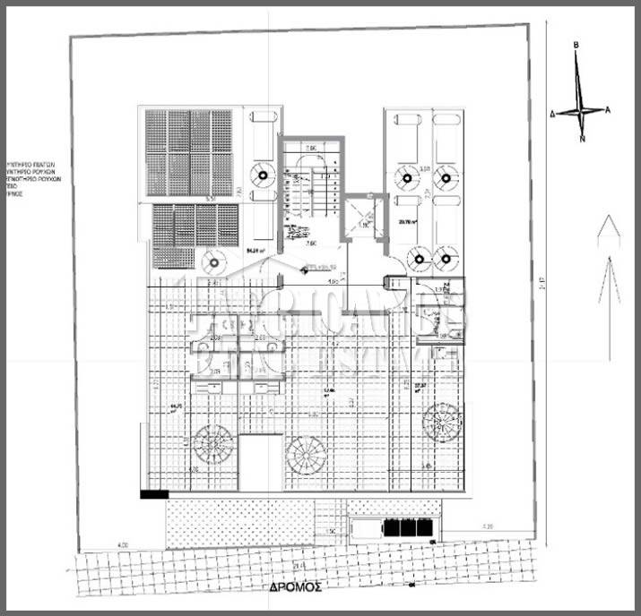
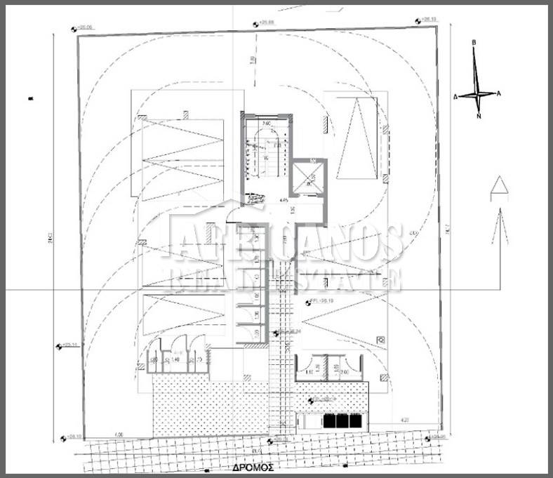
Covered Area: 65 - 67m2
Condition: Under Construction
Parking: Covered