Property Information
MLS: 17497
City: Larnaca
District: Drosia - Larnaca Town area
Status: For Sale
Type: Apartment
Subtype: Penthouse
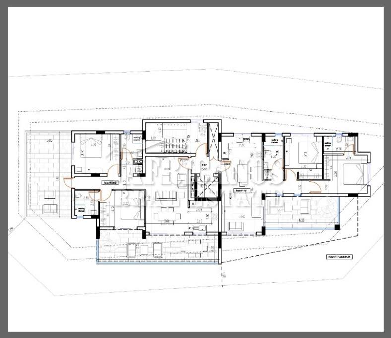
Levels: 4th Floor
Title of ownership :
Price: €345,000 - €355,000

Bedrooms: 2
Bathrooms: 1
Toilets: 2
Showers: 1
Covered Area: 80.5 - 82m2
Condition: Under Construction
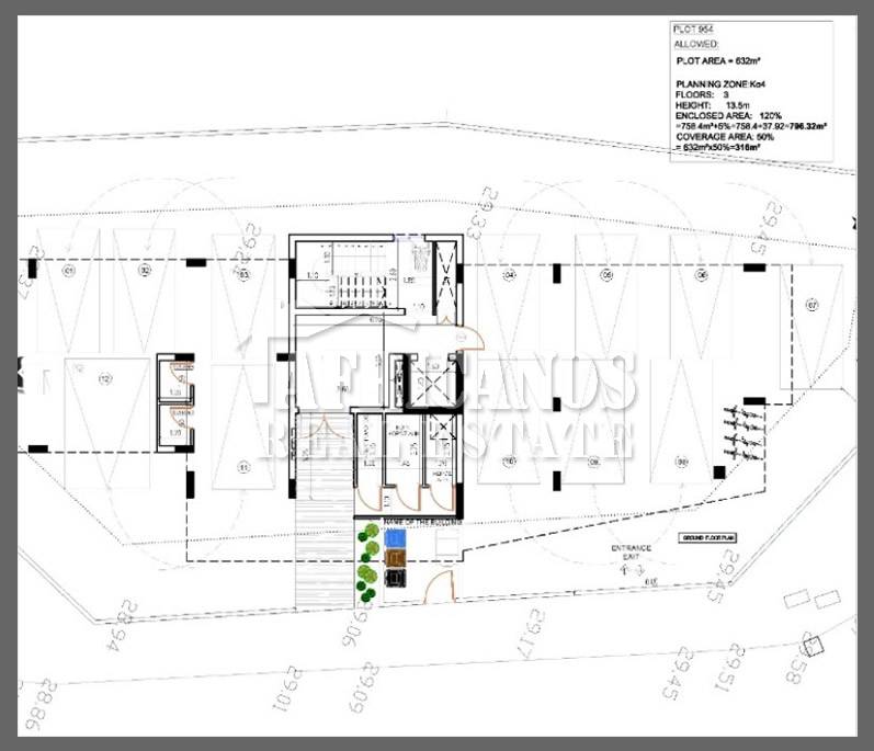
Parking: Covered

Preview
Top floor, 2 bedroom penthouse apartments, with roof garden, for sale in the prime Drosia area, close to Faneromeni commercial road. Within walking distance to the Salt Lake, amenities including schools, shops, supermarket etc. A short drive to Larnaca Town Centre and the airport.
Property Description
#Apartments for sale in Larnaca, Drosia area. The properties consist of 2 bedrooms, open plan kitchen, living room, 1 bath, 1 shower en-suite, 2wc, 18 - 24.5sq.m. covered veranda, 0 - 32.2sq.m. uncovered verandas, covered parking, storage, provision for A/C.
Property Features
Extra: Storage room, Provision for A/C, Solar Panels, Water pressurized system, Elevator, Roof Garden