Property Information
MLS: 17237
City: Larnaca
District: Drosia - Larnaca Town area
Status: SOLD
Type: Apartment
Subtype: Standard
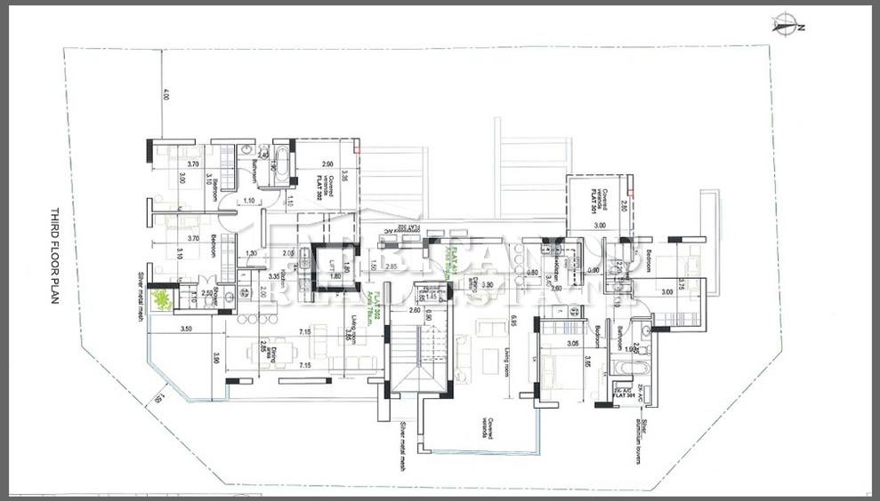
Levels: 3rd Floor
Title of ownership :
Price: €300,000

Bedrooms: 2
Bathrooms: 1
Toilets: 2
Showers: 1
Covered Area: 79m2
Condition: Under Construction
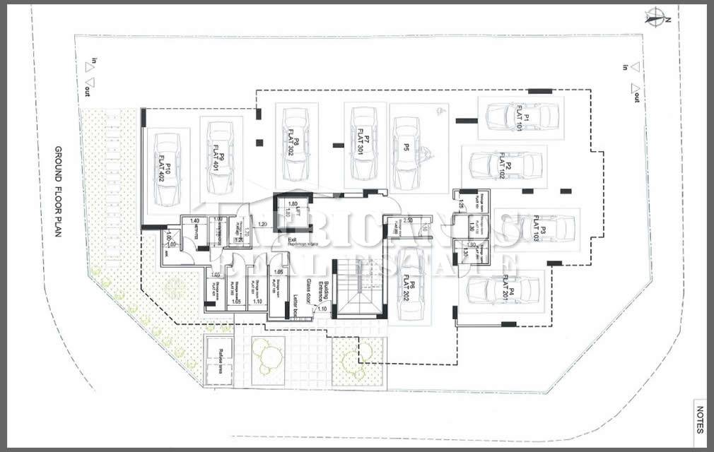
Parking: Covered

Preview
PRICE REDUCED Third floor 2 bedroom apartment for sale in the prime Drosia area. All amenities are within easy reach, including schools, supermarket, medical facilities, a variety of shops, etc. A short drive to Larnaca town centre and the beach.
Property Description
#Apartment for sale in Larnaca. The property consists of 2 bedrooms, open plan kitchen, living room, 1 bath, 1 shower en-suite, 2wc, 29sq.m. covered verandas, covered parking, storage.
Property Features
Extra: Solar Panels, Storage room, Elevator, Water pressurized system